Step-by-step instructions for installing an invisible panel in plasterboard quickly and easily.
Installing an invisible panel in plasterboard is a fairly simple operation once you have purchased the components. This type of door is particularly useful in interior design, as it allows you to hide niches and storage compartments, as well as meters and electrical systems. The invisible panel is completely invisible when closed, maintaining the uniform appearance of the wall thanks to the total absence of frames. In addition, the push/pull opening system means that no handle is required if you want a perfectly seamless look. But how do you install an invisible panel in plasterboard? Here are the instructions.
Features of an invisible panel required for installation.
An invisible panel has a special aluminum frame that allows it to be installed so that it is completely invisible when closed. Before proceeding with installation, make sure that the frame is also suitable for mounting in plasterboard, as in the case of Invisible-door.com doors. In this case, for example, the panel consists of a 19 mm thick MDF door pre-installed on a frame with a push/pull open/closing system. It is therefore also ideal for inspection hatches that allow access to the internal parts of plasterboard structures. The perfect alignment of the door with the wall is guaranteed by adjustable hinges.
How to install an invisible panel: procedure in plasterboard.
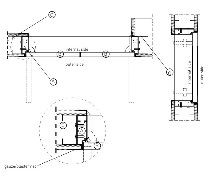
For the installation of our invisible panel in plasterboard, please refer to the following figure:

- First, insert the door complete with panel B mounted on frame A inside the compartment, carefully ensuring that it is level and plumb.
- Using special sheet metal screws, secure the frame to the plasterboard structure C.
- In the case of a plasterboard wall that has already been completed, proceed by screwing the frame from the inside, working with the doors open as shown in figure 1.
- At this point, all you have to do is to apply a reinforcement strip and coat the joints between the plasterboard and the aluminium frame.



